Over the years, we had pulled together a clear idea of the home we would like to live in – the house we wanted to build. It is an amalgam of homes we have owned, particularly our family house in Atlanta, together with memories of places we’ve been to, houses we’ve visited, films we’ve seen, houses Karin had driven past and photographed. Hard to pinpoint, but we just knew. It’s one of the reasons we chose to go with Frank and Lloyd – they understood exactly what we wanted.
So we met with them, we shared our ideas, photos, plans we had and how we wanted it to feel, as well as a wish list of certain spaces or features we wanted the house to have. And, to their credit, Frank and Lloyd very quickly came up with an outline of our dream home. It’s been tweaked a few times, but the essence of what they first drew up still stands – or will stand, once it’s built……(again, sorry)
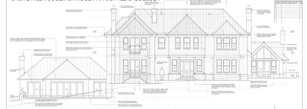
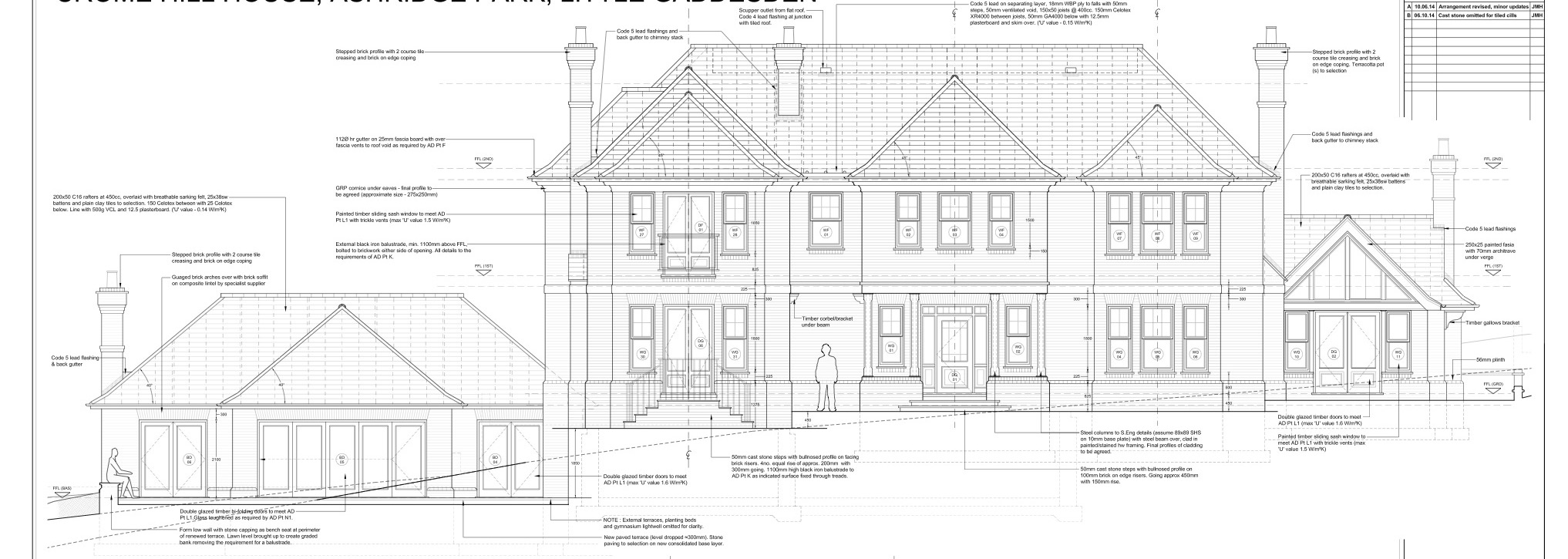
Here’s an idea of what the house will look like once completed, from some early plans :
It’s worth outlining here roughly what we intended to do. We had an idea initially that we would like to preserve some, or most, of the original 1930’s shell of the building that we were acquiring. That seemed like the right thing to do for all the obvious reasons – cost, environment, speed, preservation – but it turned out not to be so easy. Firstly, the quality of all of the extensions that had been added to the rather small, original 1934 house turned out to be very low with poor construction and limited foundations. The layout and design of the internal rooms also left a lot to be desired, unless you are a fan of long corridors, wood panelling and fibreglass beams……
In fact, because of our original intent, and due to the process that we were advised to follow to maximise the potential for the final planning approval, we first submitted plans to retain the core house and replace the extensions, which was accepted. We then separately submitted plans to replace the outbuildings with new outbuildings, that would become garages. These were also ultimately accepted, with a few tweaks following the pre-planning application. For some bizarre reason, even though the garages will be finished as traditional, agricultural outbuildings and they really cannot be seen by passers by at all, this was harder to get planning for than the house. And finally we resubmitted plans for the house, but this time as a complete new construction, but with a broadly similar layout and style. The rationale for this was health and safety (a new build is a safer process rather than working round and crucially under an existing building), environmental (it’s possible to create a much more eco friendly, carbon efficient house with new build) and a shorter period of disruption to neighbours. There was the small added advantage that we avoided paying 20% VAT on the build and we could get exactly what we wanted. But these were just fortunate by-products of doing the right thing……
So what was the planning process actually like? It seemed to us that it should be pretty straightforward given the circumstances. We had acquired a rundown house, with some unattractive extensions, which stood in the middle of 8 acres, not easily seen by passers by. So we went to the local authority planners, and after a couple of chats they signed off our plans and we started building!
Or not…..
Somehow it turns out not to be that easy. Because common sense, logic, intelligence and pragmatism play no part in the world of planning, or in the world of local authorities generally it would seem. Ticking “the right boxes” and as many of them as possible, no matter how inappropriate to our personal circumstances, seemed to be the order of the day. Do the planners really think it is a good idea to ensure there is disabled access to the basement from a terrace that is in fact only accessible if a wheelchair user has negotiated a perilously steep grass slope? They are not bothered that access to the basement terrace itself is dangerous, just that a wheelchair user can get into the house from that particular location. And we only narrowly averted a hotel style external fire escape from the loft area just because we had the ridiculous idea of using ALL the available space and so created a bedroom in the eaves. Bonkers… and “more than my job’s worth” thinking.
That’s enough. We won’t rant any more about the process. In the end, due to the skills, persuasiveness and patience of Frank and Lloyd and a surprisingly helpful, and dare we say it, pleasant planning officer who succumbed to Karin’s charms and ultimately even wished her good luck with the project, we have got most of what we wanted and probably more than we had expected at the beginning. We know that many people have been through a much harder process than us (@iolly, you know we’re thinking of you here) so we certainly won’t complain any more.
We also won’t bore you with a blow by blow account of what it took to obtain permission to build. But we did think a simple summary of what we went through might be helpful, with a rough chronology.
So after 1 yr and 3 months, 6 surveys, 204 emails and £!!!, we received planning permission and National Trust approval to build. Wasn’t that hard really. I’d do it again tomorrow. Worth pointing out that Karin really did all the work. She wouldn’t do it all again tomorrow…..































